A title
Image Box text
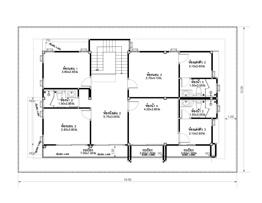
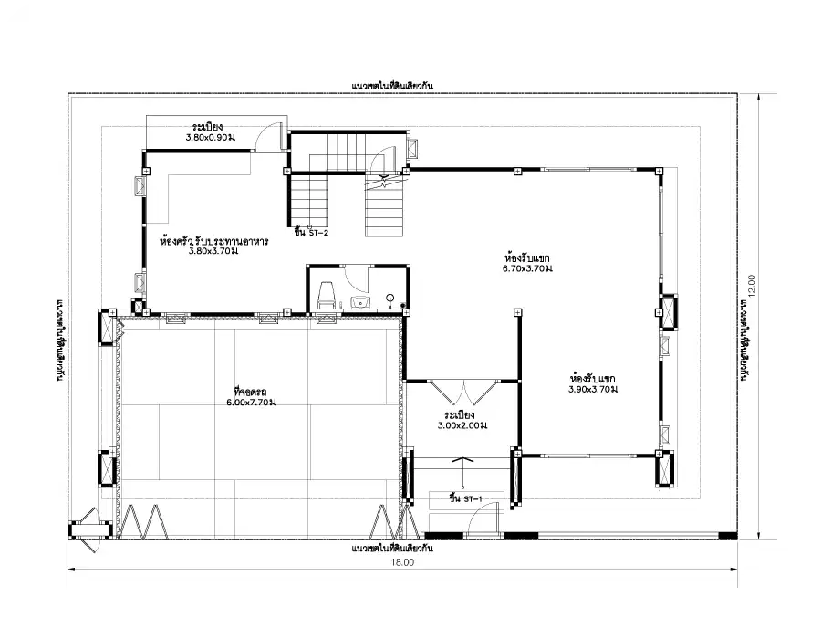
เป็นบ้านเดี่ยวสุดหรู ฟังก์ชั่นบ้านที่ลงตัว หลังใหญ่ ราคาจับต้องได้มีพื้นที่ส่วนกลางครบครันด้วยคลับเฮ้าส์ ฟิตเนส สระว่ายน้ำ ถนนกว้าง และพื้นที่สีเขียวเดินทางสะดวก ใกล้ BTS สายสีแดง,สายสีเขียว เพียง 20 นาที และใกล้ทางด่วนมอเตอร์เวย์, โทลล์เวย์ เพียง 10 นาที รายล้อมด้วยห้างสรรพสินค้า โรงพยาบาล และสถานศึกษาชั้นนำมากมาย เป็นที่อยู่อาศัยที่สมบูรณ์แบบเป็นโครงการบ้านเดี่ยวหลังใหญ่สุดหรูระดับพรีเมี่ยม สไตล์ Modern บนทำเลแห่งศักยภาพ พื้นที่ภายในมีความกว้างขวาง ด้วยฟังก์ชั่น เป็นบ้านเดี่ยว ขนาด 4 ห้องนอน 2 ห้องนั่งเล่น4 ห้องน้ำ 1 ห้องครัว 3 ที่จอดรถรวมเนื้อที่ 235ตารางเมตร คุ้มค่าต่อการใช้ชีวิต
Image Box text
Image Box text
Image Box text
ชื่อโครงการ
พัฒนาสิริ รังสิต – คลอง 3
พัฒนาโดย
บริษัท บ้านพัฒนาสิริ จำกัด
ที่ตั้งโครงการ
ซอยเลียบคลองสองซอยที่ 3 (เหนือ) ถนนรังสิต – นครนายก หมู่ที่ 2
ตำบลบึงยี่โถ อำเภอธัญบุรี จังหวัดปทุมธานี
ลักษณะโครงการ
บ้านเดี่ยว 2 ชั้น อยู่ในสังคมส่วนตัวเพียง 64 หลัง
ลักษณะพื้นที่ดิน
ตั้งแต่ 54 ตารางวาขึ้นไป
แบบบ้าน
บ้านเดี่ยว สไตล์ Modern
Lorem ipsum dolor sit amet, consectetuer adipiscing elit,
สระว่ายน้ำระบบเกลือ เป็นระบบที่ปลอดภัยต่อสุขภาพ
รองรับการความต้องการของลูกบ้านสายรักสุขภาพ
รักษาความปลอดภัย 24 ชั่วโมง ด้วยระบบ Key Card Access
เพิ่มควมปลอดภัยให้คุณด้วยระบบกล้อง CCTV ในโครงการ
ถนนในโครงการกว้าง และมีพื้นที่สีเขียวหน้าบ้านให้ทุกหลัง
สวนสาธารณะส่วนกลางขนาดใหญ่ในโครงการ
เดินท่อตามแนวคานคอดิน เป็นการป้องกันปลวกขึ้นสู่พื้นดิน
⮱ ใกล้ BTS สายสีแดง , สายสีเขียว เพียง 20 นาที
⮱ ใกล้ทางด่วนมอเตอร์เวย์ , โทลล์เวย์ เพียง 10 นาที
⮱ ใกล้ถนนใหญ่ เพียง 1 กิโลเมตร
โรงเรียนโชคชัยรังสิต
มหาวิทยาลัยเทคโนโลยีราชมงคลธัญบุรี
โรงเรียนสวนกุหลาบวิทยาลัย รังสิต
มหาวิทยาลัยราชภัฏพระนคร
โรงเรียนสาธิตแห่งมหาวิทยาลัยธรรมศาสตร์
มหาวิทยาลัยเทคโนโลยีราชมงคลธัญบุรี
มหาวิทยาลัยอีสเทิร์นเอเชีย
โรงเรียนธรรมศาสตร์คลองหลวงวิทยาคม
มหาวิทยาลัยเทคโนโลยีราชมงคลธัญบุรี ศูนย์รังสิต
วิทยาลัยแพทยศาสตร์นานาชาติจุฬาภรณ์
มหาวิทยาลัยกรุงเทพ
โรงเรียนสารสาสน์วิเทศคลองหลวง
โรงเรียนประสานมิตร
วิทยาลัยเทคโนโลยีทักษิณาบริหารธุรกิจ
โรงเรียนก้องฟ้าวัฒนาวิทย์
โรงเรียนสายปัญญารังสิต
1.9 กม.
11 กม.
7.6 กม.
21 กม.
15 กม.
10 กม.
9.7 กม.
15 กม.
10.8 กม.
13 กม.
12 กม.
6.2 กม.
7.2 กม.
30 กม.
3.5 กม.
9.8 กม.
โรงเรียนสาธิตนวัตกรรม
มหาวิทยาลัยนอร์ทกรุงเทพ วิทยาเขตรังสิต
โรงเรียนมัธยมสาธิตวัดพระศรีมหาธาตุ
มหาวิทยาลัยเทคโนโลยีราชมงคลธัญบุรี
มหาวิทยาลัยกรุงเทพ
โรงเรียนมัธยมนครรังสิต
โรงเรียนสาธิตแห่งมหาวิทยาลัยธรรมศาสตร์
วิทยาลัยการปกครอง
มหาวิทยาลัยนอร์ทกรุงเทพ วิทยาเขตสะพานใหม่
วิทยาลัยการบินและคมนาคม มหาวิทยาลัยศรีปทุม
มหาวิทยาลัยรังสิต
มหาวิทยาลัยราชภัฏพระนคร
วิทยาลัยการทัพอากาศ
วิทยาลัยพัฒนศาสตร์ ป่วย อึ้งภากรณ์
วิทยาลัยพยาบาลทหารอากาศ กรมแพทย์ทหารอากาศ
ศูนย์วิทยาศาสตร์ ม.ราชภัฏวไลยอลงกรณ์
11 กม.
2.2 กม.
21 กม.
11.5 กม.
12.5 กม.
3.6 กม.
15.5 กม.
8.3 กม.
17.7 กม.
23 กม.
12.3 กม.
21 กม.
15.5 กม.
15 กม.
15 กม.
20 กม.
ฟิวเจอรปาร์ค รังสิต แอน สเปลล์
โลตัส รังสิต -นครนายก
วีโฮมรังสิต
เซียร์ รังสิต
The Hub Rangsit
บิ๊กซี ฟิวเจอร์พาร์ค รังสิต
แฟชั่นไอส์แลนด์
6.8 กม.
7.8 กม.
10 กม.
9.8 กม.
9.2 กม.
8.8 กม.
27 กม.
บิกซี รังสิต – คลอง 3
มาร์เก็ตวิลเลจ
Crystal 60 Big C คลอง 6
ห้างสรรพสินค้าโรบินสัน สาขาราชพฤกษ์
โลตัส โก เฟรช รังสิต คลอง 5
ห้างสรรพสินค้าเซ็นทรัล สาขาลาดพร้าว
3 กม.
3.4 กม.
10 กม.
26 กม.
7.2 กม.
27 กม.
สถานีตำรวจภูธรธัญบุรี
สถานีตำรวจภูธรปากคลองรังสิต
สถานีตำรวจภูธรคลองห้า
โรงพยาบาลรัตนประชารักษ์ สำนักการแพทย์
โรงพยาบาลสินแพทย์ ลำลูกกา
โรงพยาบาลสายไหม
สถานีตำรวจภูธรลำลูกกา ตำบล บึงคำพร้อย
9.3 กม.
15.8 กม.
13.7 กม.
23 กม.
11 กม.
12.5 กม.
17 กม.
สถานีตำรวจภูธรคูคต
ศูนย์ปฏิบัติการชุดสายตรวจพิเศษ สภ.ปากคลองรังสิต
โรงพยาบาลพญาไท 2
โรงพยาบาลวิภาวดี
สำนักงานที่ดินจังหวัดปทุมธานี สาขาคลองหลวง
โรงพยาบาลซีจีเอช พหลโยธิน
โรงพยาบาลภูมิพลอดุลยเดช กรมแพทย์ทหารอากาศ
11.6 กม.
14 กม.
3.3 กม.
23 กม.
17 กม.
17 กม.
15 กม.
**เงื่อนไข เป็นไปตามที่บริษัทฯ กำหนด อาจมีการเปลี่ยนแปลงโดยไม่แจ้งให้ทราบล่วงหน้า
Lorem ipsum dolor sit amet, consectetuer adipiscing elit
Lorem ipsum dolor sit amet, consectetuer adipiscing elit
Lorem ipsum dolor sit amet, consectetuer adipiscing elit
Lorem ipsum dolor sit amet, consectetuer adipiscing elit
Lorem ipsum dolor sit amet, consectetuer adipiscing elit
Lorem ipsum dolor sit amet, consectetuer adipiscing elit
กรอกข้อมูลส่วนตัวที่นี่
โดยใช้ในนาม
บริษัท บ้านพัฒนาสิริ จำกัด (สำนักงานใหญ่)
24 หมู่ 2 ตำบลบึงยี่โถ อำเภอธัญบุรี
จังหวัดปทุมธานี 12130
โทร : 0-2853-3694
ฝ่ายขาย : 02-094-8281-3
แฟกซ์ : 02-094-8287
Emall : officepattanasiri@gmail.com